
Projects often require moving barges by land or indeed by sea, modular barges are a simple solution. I have been chasing a good modular barge solution for a long time and this is the absolute best modular barge I been able to find.
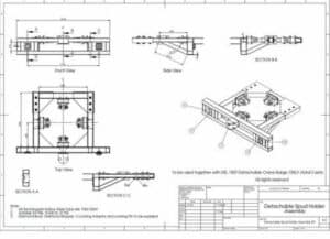
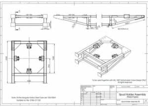
They are standard sized container sized modules (40ft x 8 ft) and delivered with CSC Certification making shipping very affordable. (standard container rate per module) Spud holders are also available if required and are available either fixed or detachable.
The connector keys are an engineering masterpiece with patents applying (drawings and pics cannot be shown here.) but suffice to say they not only cope with the weight but are also much easier to remove than other types.
At this stage, we can look at accepting orders with a minimum of four modules which will give you approximately 40ft x 32ft
Each module has a max payload of 48.7 t (Don't forget, stability will always govern the size)
It is probably easier to call me and tell me what size barge you require and for what purpose and I will quote you.
Below are some examples of a crane barge and a drilling or piling configuration to give you an idea.
Pricing is indicative as costs can fluctuate but were correct as of 15th May 2019
EXAMPLES of the transportable modular barges
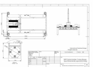
Type A Modular (Crane) Barge 48.76m x 14.62m x 2.6m; total of 24 x 40ft pontoons plus 78 sets of connectors.
All units delivered with CSC Certification, total estimated weight 274T.
Max Payload (per module) 48.7t Each - Total Cargo Capacity 1168t
Price: USD $1,243,000 FAT Shanghai, China

Type B Modular (Drilling & Piling) Barge 36.57m x 12.19m x 2.6m; total of 15 x 40ft pontoons plus 46 sets of connectors.
All units delivered with CSC Certification, total estimated weight 171T.
Max Payload Each (Module) 48.7 t - Total Cargo Capacity 730t
Price: USD $776,050 FAT Shanghai, China

Spare Connector Keys USD $1050 per pair.
Class approval per layout is estimated at USD $47,000.
Lead time: delivery Shanghai 4 months from order.
Fixed spud assembly

Detachable Spud Assembly

Spud Pile Detail
